binnengang binnengang binnengang binnengang binnengang binnengang binnengang binnengang binnengang binnengang binnengang binnengang binnengang binnengang binnengang binnengang binnengang binnengang binnengang binnengang

Stadsvilla

Renovatie en uitbreiding van een gemeentelijk monument


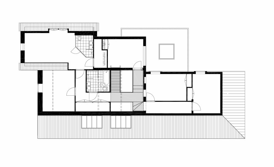
Verbouwing en uitbreiding van een gemeentelijk monument aan de Blekersvaartweg te Heemstede, bestaande uit een woonhuis uit 1896 en een voormalige paardenstal uit 1660. Centraal in de grote woning is een vide gemaakt waarin trappen en brugdelen de verschillende vloerniveaus met elkaar verbinden. Door de vide met bovenin daklichten in het schuine dak komt het daklicht diep in hart van de woning. Een nieuw transparante uitbouw zorgt voor een relatie tussen het interieur van de woning en de tuin.

De opdrachtgever: "En ik lieg niet dat we vrijwel dagelijks iets zeggen over ons heerlijke huis. Het is vrij briljant wat je hier gedaan hebt!"

Locatie: Heemstede, Nederland
Grootte woning: 375 m2
Grootte kavel: 1030